Descriptif

Conception – réalisation d'une maison sur-mesure en bois à étage intégrant 1 belle pièce de vie de 44 m² avec cuisine ouverte, 1 suite parentale au rez-de-chaussée avec sa salle d'eau, 1 cellier, 3 chambres à l'étage, 1 salle de bain. 

Architecte : Stéphane Pineau

Nos solutions de maison sur-mesure en bois 

Localisation :
Lieu
Carquefou
Surface :
Surface
143 m²
Date de réalisation :
Les plus du projet
  • La maison est idéalement située dans l'éco-quartier de la Fleuriaye à Carquefou
  • Le projet s'inscrit dans une démarche environnementale volontariste visant à optimiser la performance énergétique et le confort d'usage des habitants
  • Sa conception bioclimatique a donc intégré tous les aspects de la conception, techniques et constructifs : orientation, compacité, ossature bois, isolation, lumière naturelle...
  • Le jeu de bardage apporter de l'originalité et met en valeur les différents volumes de la maison

Aperçu

Cette maison individuelle à étage est située dans l'éco quartier de la Fleuriaye à Carquefou en Loire-Atlantique 

Nous avons imaginé un projet sur-mesure, qui répondaient aux exigences du quartier en matière de maîtrise des consommations d'énergie et de confort des propriétaires : une maison passive

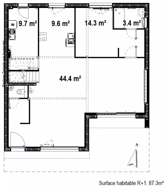
Au rez-de-chaussée, la maison dispose d'un vrai espace entrée desservant ensuite le grand séjour. De grandes baies rendent ce bel espace de vie lumineux, avec vue directe sur le jardin. Une spacieuse suite parentale avec sa propre salle d'eau vient compléter les pièces du bas. A l'étage, l'espace nuit comporte 3 chambres pour les enfants ou pour recevoir. 

La maison dispose de volumes plutôt compacts mais très harmonieusement répartis avec un jeu de décrochés et d'avancées. Les jeux de bardage verticaux et horizontaux, et le bardage en zinc soulignent les volumes et renforcent les décrochés pour donner une architecture contemporaine et unique à la maison

Des panneaux photovoltaïques sont disposés sur le toit double-pente pour la production d'électricité de cette maison passive et positive, qui produit plus d'énergie qu'elle n'en consomme.

Parlons plans !

plan-maison-sur-mesure-bois-passive-carquefou
plan-etage-maison-sur-mesure-bois-passive-carquefou
orange-arrow-svg
Définissons
votre projet ensemble
Vos réflexions commencent à peine ?
vue-nef-siege-macoretz-saint-pere-en-retz

Laissez-vous guider et faites mûrir votre projet grâce à nos conseils personnalisés

Prêt à nous confier votre projet ?
rdv-choix-materiaux-carrelage-faience-macoretz-saint-pere-en-retz

Votre projet est déjà bien défini ? Utilisez notre formulaire et dites-nous tout !