Descriptif

Conception – Réalisation d’un agrandissement en bois 

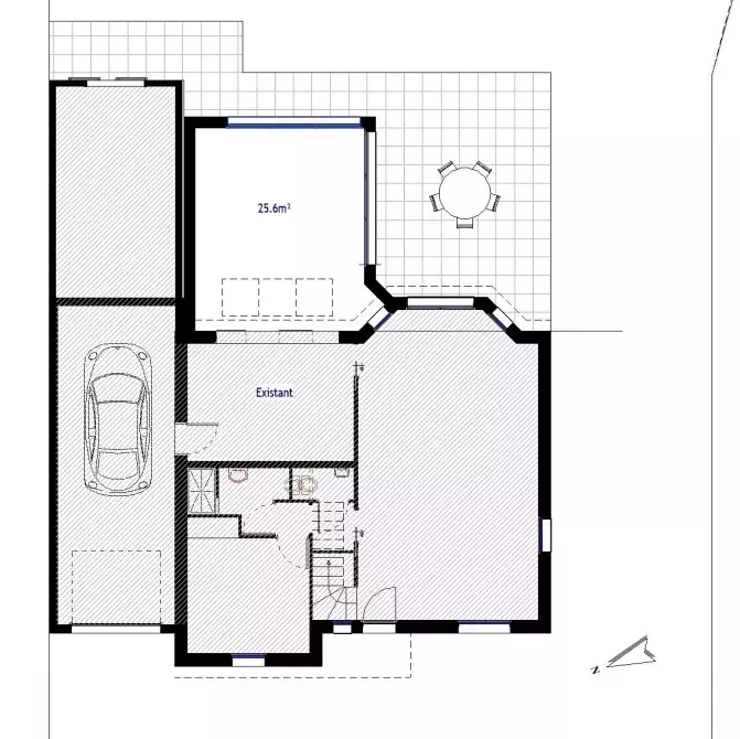
Extension en ossature bois de 25.6 m² pour agrandir la pièce de vie de la maison. 

Je découvre l'offre d'extension en bois

Localisation :
Lieu
Guérande
Surface :
Surface
26 m²
Date de réalisation :
Les plus du projet
  • Une architecture contemporaine est affirmée par un traitement moderne des façades en panneau plan.
  • Le savoir-faire « Tous Corps d’État Intégrés » permettant une réponse adaptée

Aperçu

Nous sommes à Guérande, aux abords des remparts de la ville médiévale. Le projet est l’extension en bois d’une maison individuelle.

Celle-ci est en rez-de-chaussée avec un étage sous combles. La cuisine donne sur le jardin mais reste petite. Le programme est de donner à cet espace familial un peu plus de convivialité.

Découvrez le savoir-faire en révovation de Macoretz à Guérande et alentours

L’idée a été de créer un nouveau volume, ouvert sur le jardin et accessible depuis la terrasse actuelle du séjour. Le choix de la couverture s’est porté sur une toiture terrasse. La luminosité ambiante dans ce nouvel espace est assurée par les larges ouvertures des menuiseries extérieures, et renforcées par une verrière sur la couverture.

Jean-Michel Le Chanu (CRÉA ARCHITECTURE), architecte partenaire

Parlons plans !

plan-extension-ossature-bois-guerande
orange-arrow-svg
Définissons
votre projet ensemble
Vos réflexions commencent à peine ?
vue-nef-siege-macoretz-saint-pere-en-retz

Laissez-vous guider et faites mûrir votre projet grâce à nos conseils personnalisés

Prêt à nous confier votre projet ?
rdv-choix-materiaux-carrelage-faience-macoretz-saint-pere-en-retz

Votre projet est déjà bien défini ? Utilisez notre formulaire et dites-nous tout !