Descriptif

Conception – Réalisation d’un agrandissement en bois 

Extension en ossature bois pour créer un espace lumineux.

Je découvre l'offre d'extension en bois

Localisation :
Lieu
Sucé-sur-Erdre
Date de réalisation :
Les plus du projet
  • Les larges baies offrent une variété de cadrages sur le paysage naturel

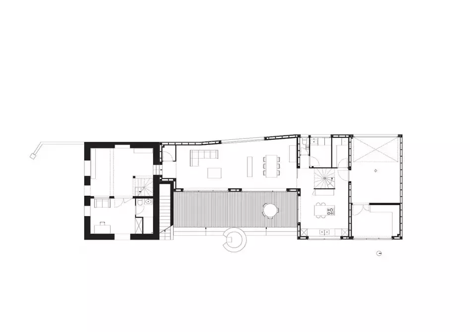
Une maison, une histoire

L'extension est composée de 3 blocs imbriqués, dont la volumétrie génère avec la maison existante un espace extérieur protégé. Ce nouvel espace de vie accueille la terrasse, tournée vers la rivière.

Arnaud Dambrine, Architecte Olgo

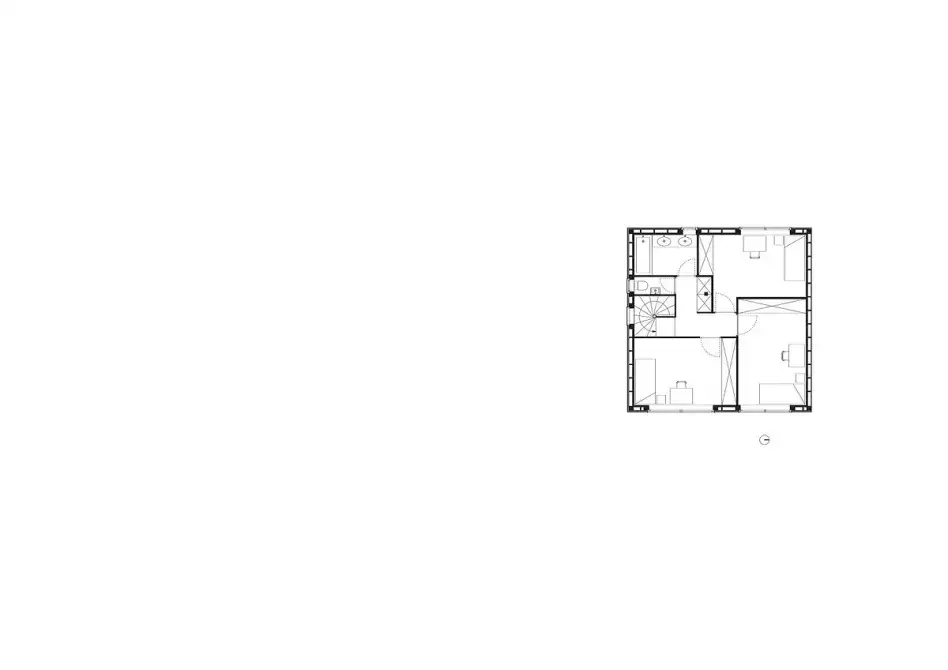
Parlons plans !

plan-rdc-surelevation-ossature-bois-suce-sur-erdre
plan-etage-surelevation-ossature-bois-suce-sur-erdre
orange-arrow-svg
Définissons
votre projet ensemble
Vos réflexions commencent à peine ?
vue-nef-siege-macoretz-saint-pere-en-retz

Laissez-vous guider et faites mûrir votre projet grâce à nos conseils personnalisés

Prêt à nous confier votre projet ?
rdv-choix-materiaux-carrelage-faience-macoretz-saint-pere-en-retz

Votre projet est déjà bien défini ? Utilisez notre formulaire et dites-nous tout !